Casa semindipendente in vendita

Andorno Micca, Via Levera
€ 38.000
6 locali 6 locali
250 Mq 250 Mq
1 bagno 1 bagno

Casa semindipendente in vendita

Andorno Micca, Via Levera

Descrizione annuncio

Casa semindipendente sita nel comune di Andorno Micca, in posizione tranquilla e comoda ai sevizi, a pochi minuti da Biella.

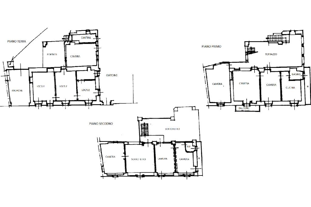
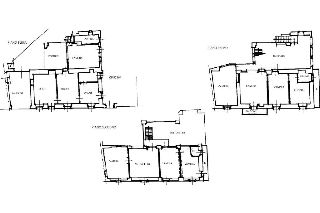
L’immobile, di circa 140 mq, è posto su tre livelli. Al piano terra, sono presenti cantine e locali da adibire a proprio piacimento. Al piano primo, raggiungibile da scala esterna, un ampio terrazzo e ulteriori locali. Al piano secondo, sottotetto e due vani.

La proprietà necessita di un intervento completo di ristrutturazione. Tutte le utenze (metano, luce e acqua) arrivano fino all'immobile.

A completare un giardino privato di circa 130 mq ed un rustico su due livelli.

Mostra tutto

Nelle vicinanze

Trasporto pubblico Trasporto pubblico
Trasporto pubblico
2,1 Km
Ricariche auto elettriche Ricariche auto elettriche
SAGLIANO MICCA Via per Miagliano | ENELX
300 m
Sagliano Micca XXV Aprile | EnelX
1,3 Km
Pralungo D'Acquisto | EnelX
2,7 Km
Scuole Scuole
Scuola Elementare
270 m
Farmacia Farmacia
Farmacia
380 m
Farmacia Dr. Amadori
2,7 Km
Ristoranti Ristoranti
Ristorante Peo
1,2 Km
Agriturismo Cà d'Andrei
1,6 Km
Agriturismo Cascina Rovet
2,3 Km
Mostra tutto

Caratteristiche

Rif.:
61116384
Piano:
3 di 4 (Piano su più livelli)
Posti auto:
2
Balconi:
3
Terrazzi:
1
Camere da letto:
2
Mostra tutto
Prezzo Prezzo
€ 38.000
Rata mutuo Rata mutuo
€ 180 / mese
Spese annue Spese annue
€ 0
Proponi il tuo prezzoProponi il tuo prezzo

Classe Energetica

Questo immobile è esente da classe energetica
Anno di costruzione:
1900
Riscaldamento:
Autonomo
Tipo impianto:
A stufa
Tipo alimentazione:
Altro

Ti interessa visionare l'immobile?

Fissa un appuntamento  Fissa un appuntamento

Richiedi informazioni

Clicca su Leggi per aprire l'informativa
* Questi campi sono obbligatori

Calcola il tuo mutuo

Semplice e senza impegno
Anticipo

( % )
Mutuo

( % )

pochi semplici passi

inserisci i tuoi dati
Questionario completato
Grazie per aver richiesto un appuntamento senza impegno con un nostro Consulente del Credito e Assicurativo.

Hai inserito correttamente tutti i dati necessari e a breve riceverai una e-mail con un link da convalidare per inviare i tuoi dati.
Affiliato
Studio Tollegno Sas
Via Martiri della Liberta', 24 13818 Tollegno (BI)

Il nostro staff


  • Francesco Martinelli
    Affiliato

  • Patrick Bolzonella
    Responsabile
Via Martiri della Liberta', 24 13818 Tollegno (BI)
Zona: Tollegno - Pralungo - Andorno - Sagliano
Mostra su mappa
Orari: Dal lunedì al venerdì dalle 9:00 alle 12:30 e dalle 15:00 alle 19:30. Sabato dalle 9.00 alle 12.30 e dalle 15.00 alle 18.00
Affiliato
Studio Tollegno Sas
Via Martiri della Liberta', 24 13818 Tollegno (BI)

2026 Tecnocasa Franchising S.p.A. - P. IVA 08365160152 - Via Monte Bianco 60/A 20089 Rozzano (MI). Ogni agenzia ha un proprio titolare ed è autonoma. Privacy policy | Policy utilizzo | Cookie policy